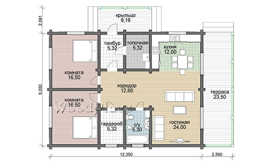
Проект дома "Волгоград"

Дом может быть выполнен из бруса технической сушки или клееного бруса. Комплект включает брус (только сосна, с антисептиком Remmers) с зарезанными чашками и готового к сборке и сопутствующими пиломатериалами. Стоимость доставки до объекта и фундамента рассчитывается индивидуально.

Grosses soldes