Jak wiadomo ceny różnią się w przypadku altan, wynika to z różnych cech konstrukcyjnych - materiałów, wymiarów, sposobu mocowania, łączenia części. Każda chwila wpływa na koszt. Oferujemy bardzo opłacalną i ekonomiczną opcję - przestronną i estetycznie atrakcyjną altanę z drzewa. Jako producenci domów drewnianych, posiadający własne zakłady produkcyjne, oferujemy niskie ceny na altany drewniane.
>Katalog przedstawia zdjęcie altany, którą można kupić dzwoniąc do nas. Możemy wykonać altanę dowolnego rozmiaru i wzoru.
|
|
| Wliczone w cenę altany: |
|
| 1. projekt drewna profilowanego |
|
| 2. belki podłogowe 150x150 |
|
| 3. deska podłogowa 150х50 |
|
| 4. belka stropowa 205x70 (strugana) |
|
| 5. łata 100x25 |
Zestaw jest impregnowany środkiem antyseptycznym i gotowy do montażu.
Przy budowie domu rabaty dla altany 40% !!!
Altana do domu lub wiejskiej posiadłości - to ładny dodatek drewniany. Najlepszym rozwiązaniem - będzie gotowy zestaw, który szybko się składa i wygląda bardzo pięknie. Drewniana altana staje się małym pomostem między człowiekiem a przyrodą. Można tutaj spędzić dużo czasu miło i pożytecznie, a nawet jeśli pada deszcz, nie jest to takie przerażające, ponieważ dach chroni nas przed wodą. Drewniana altana w ogrodzie jest więc przytulnym miejscem na relaks.
Pierwsze promienie słońca przyjemnie budzą się ze snu, śpiew ptaków za oknem i zapach lata, świeżości, rozkoszy traw i dobrego nastroju stają się jeszcze lepsze. Lato ... Nie trzeba się ubierać, żeby wyjść i wypić kawę w altanie, kontemplując poranny krajobraz. Trawa jest miękka i wilgotna od rosy, lekko kwitnące kwiaty, kwitnące drzewa ogrodowe, błękitne niebo - na tym świecie wszystko jest piękne.
Po południu wspaniale jest zjeść posiłek w naturze, a wieczorem smażyć kebaby i bawić się rozmawiając z bliskimi. Jak pięknie jest w altanie, w której możesz spędzić czas. Altana - wyspa komfortu, która zapewni wiele przyjemnych chwil.
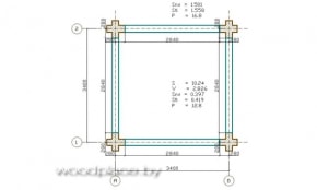
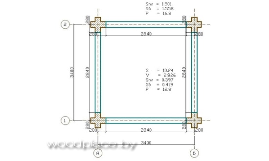
Możesz zobaczyć plan altany, wymiary struktury, klikając na linki.