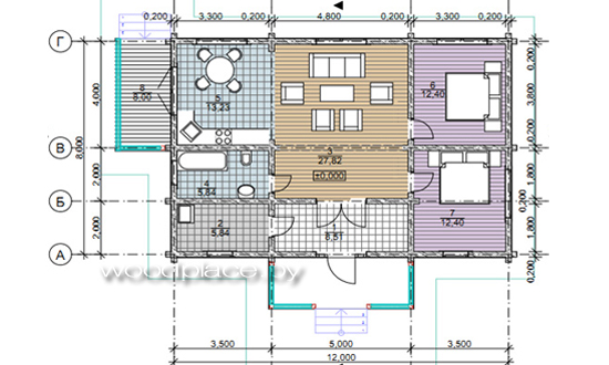
Projekt domu "Logojsk"

Price: 1 646 956 руб.

Kompletacja domu zawiera (materiały ścienne, belki stropowe, bale osadzone i podkładane, system krokwi i cały konieczny dla montażu materiał, co zawiera (materiały do ocieplania międzywieńcowe, wyroby metalowe ogólnego zastosowania i łączenia, membrana dachowa, kołki)

Powierzchnia wspólna = 96 m2

Cena: 258$ /m2