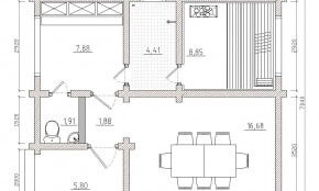
Проект бани "Боровик"

Баня может быть выполнен из бруса технической сушки или клееного бруса. Комплект включает брус с зарезанными чашками и готового к сборке. Мы с радостью доставим Вашу баню на объект и произведём качественную сборку.

Стены из 140 х 190
Балки 200 x 140 (строганные)
Обрешетка 100 х 25
Рейка 50 х 25
Стойки 150 х 150
Стропила 205 x 70 (строганные)