Проект дома "Озёрный замок"

Цена: 87 600 $

материал стен клееный брус
толщина стен 200мм*170мм

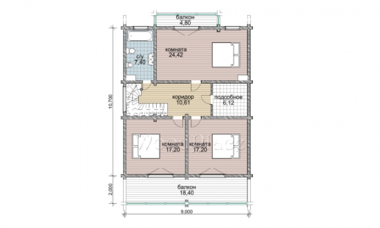
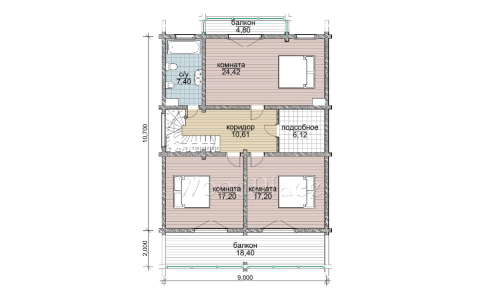
Площадь общая 168.6 м2
Площадь жилая 102.5 м2

  • габариты 9200мм*13000мм
  • С/у - 2
  • Спальни - 4
  • Этаж - 2

от 87600$


Минимальная комплектация:

Комплект стенового материала из профилированного бруса (клееный, только сосна) 200*170(h)

ВКЛЮЧЕНО в стоимость стенового комплекта:

- обработка антисептиком Lignofix на производстве 200*170(h)
- раскрой стенового материала, зарезка чашек и пазов по проекту 200*170(h)
- обработка торцов герметиком Lignofix на производстве 200*170(h)
- сверление отверстий под нагеля

  • Комплект стропильной системы (клееные, строган., с антисептиком Lignofix) 200*90 мм
  • Комплект балок перекрытия (клееные, строган., с антисептиком Lignofix) 120*190 мм
  • Обрешетка (тех.сушка, строган., с антисептиком Lignofix) 120*20 мм
  • Контр рейка (тех.сушка, строган., с антисептиком Lignofix) 40*40 мм
  • Осадной брусок (тех.сушка, строган., с антисептиком Lignofix) 60*65 мм
  • Комплект стоек (клееные, строган., с антисептиком Lignofix) 200*180 мм
  • Подкладной брусок (тех.сушка, строган., с антисептиком Lignofix) 200*40 мм
  • Запесочники (стеновой профилированный брус) 580 мм
  • Лобовая доска 120*20 мм

Отдельно:

  • фундамент
  • сборка
  • кровля

*Минимальная комплектация может быть изменена по желанию заказчика.