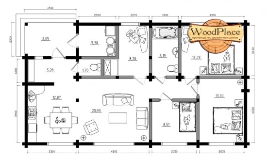
Проект дома "Полярные зори"