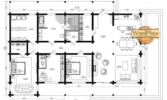
Проект дома "Континенталь"